ARCHITECTURE
STUDIO
CONTACT
ARCHITECTURE
STUDIO
CONTACT
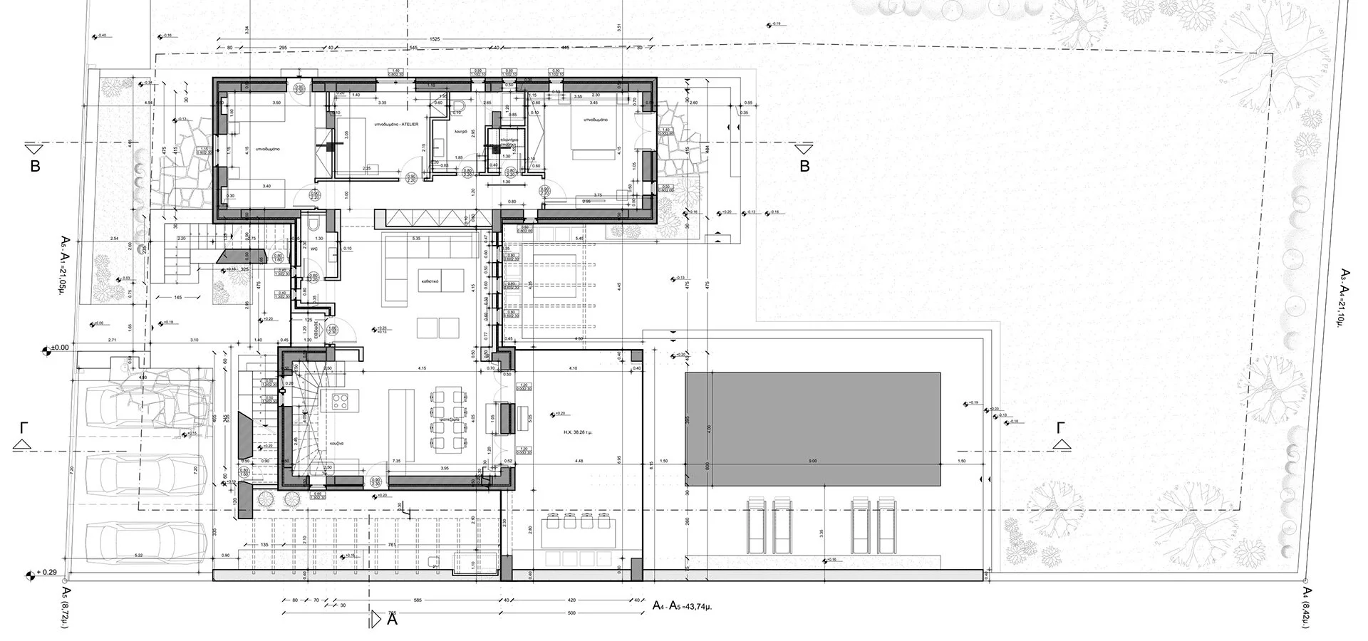
VILLA WITH POOL IN AMPELAS, PAROS
COMPLETED